Description
Single Door Panic and Emergency Exit Hardware EN 1125 Panic doors in Public Areas, Single Point Locking.
Push Bar Rim Panic Latch, Timber Doors, Metal doors, Silver Finish
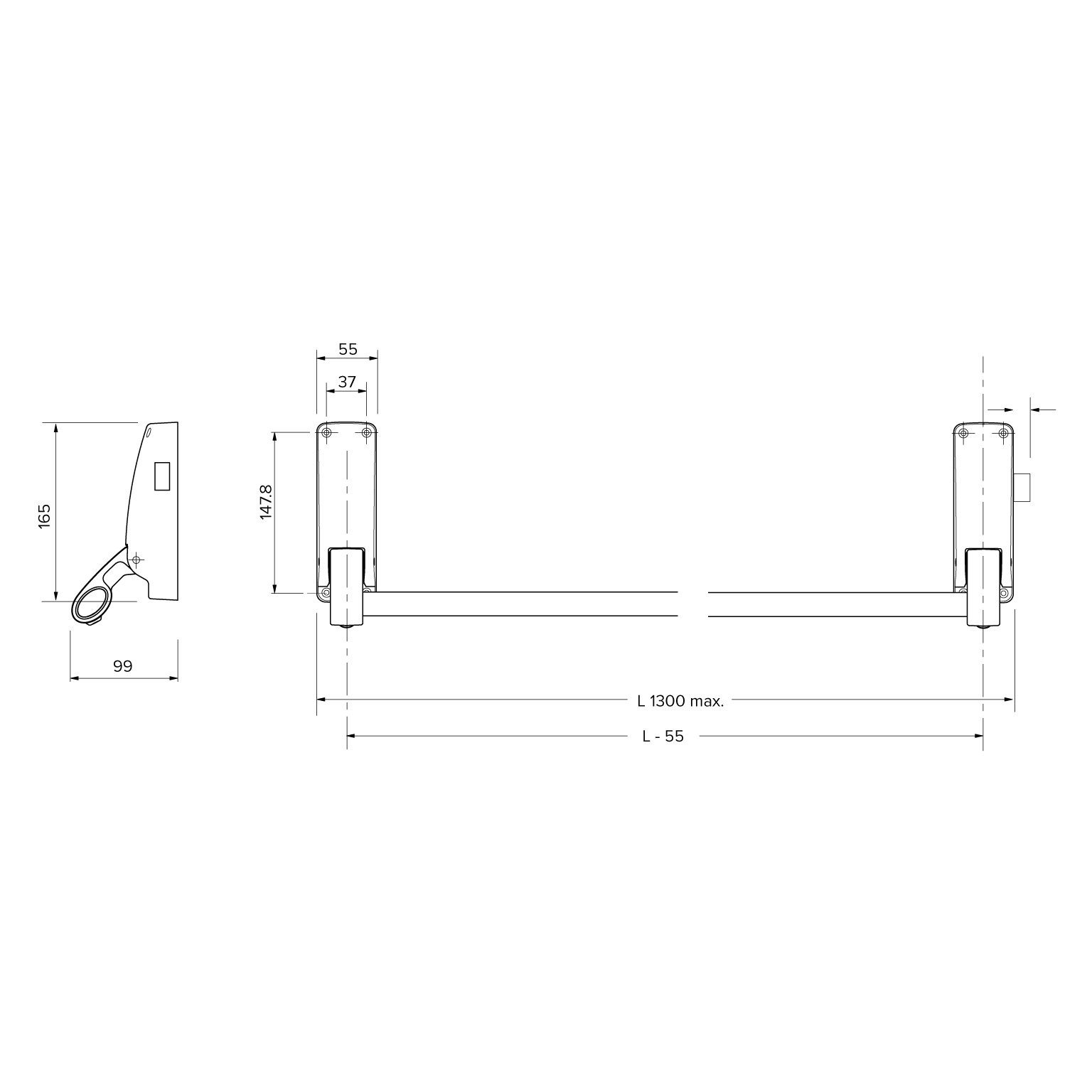
The 378 Briton push bar rim latch is a surface mounted push bar panic exit device with single point rim latch. Used in public areas on single escape doors that are outward opening to allow people to exit a building swiftly and efficiently in case of fire, natural disaster, and any other emergency. Are available to suit timber or metal doors. Is reversible on site. Works on single doors that up to 1300mm wide and 2500mm high and 200kg maximum weight. Tubular steel cross bar can be cut door on site to suit door width. Supplied with “Push Bar to Open” signage.
Testing – Is fire tested to EN 1634 to achieve up to 2hours on timber and steel doors. UKCA marked to EN 1125 (1121-CPR-AAA7569). CE marked to EN 1125 (2812-CPR-AAA0011). Certifire Approved (CF5506). Environmental Product Declaration in accordance with ISO 14025 and EN 15803. Tested in excess of 200,000 cycles.
378.R.SE – Push bar rim panic latch supplied with wood fixings. Silver finish.
378M.R.SE – push bar rim panic latch supplied with metal fixings. Silver finish.
Additional Options that suit the 378-push bar. Single point locking to EN 1125 Panic doors in public areas.
376/1021 – Dogging End Box – Replacing the standard end box of the operating device with the dogging end box enables the bolts or latchbolt to be held in the withdrawn position to allow free passage.
1413.LE – Outside Access Device Lever Operated – For doors 40 – 100mm thick. Can be used on timber and metal doors. Anti-Vandal design allows the lever to rotate when the unit is locked. Supplied with 40mm euro profile cylinder. Locked or unlocked by key operation. Is BS8300 compliant. Lever is reversible on site.
1413.KE – Outside Access Device Knob Operated - For doors 40 – 100mm thick. Can be used on timber and metal doors. Supplied with 40mm euro profile cylinder. Locked or unlocked by key operation. Is BS8300 compliant.
9260 -Digital Code Lock - Light duty mechanical push button lock with lever operation. Suitable for low traffic applications, can be used on internal and external doors. Access is by 4 – 6-digit code. Supplied with extra long spindles for doors 40mm to 70mm thick. Can be used on either timber or steel doors. Has reversible lever so can be used on left and right-handed doors. Code changed by removing unit from the door. Easy to retrofit.
Payment & Security
Your payment information is processed securely. We do not store credit card details nor have access to your credit card information.






